Bespoke design and build in sublime living spaces, Anassa is an embodiment of luxury
An architectural marvel positioned at the most enviable address of the city, this discerning choice of abode boasts of expansive carpet areas, stunning views stretching across the city skyline and stalwart living under high ceilings.
From plush walkways to regal landscape, this gilded tower is inlaid with a dramatic pool, games room, private gym and spa

Property Type
Residential

No. Of Floors
G + 35

year completion
Jul-23
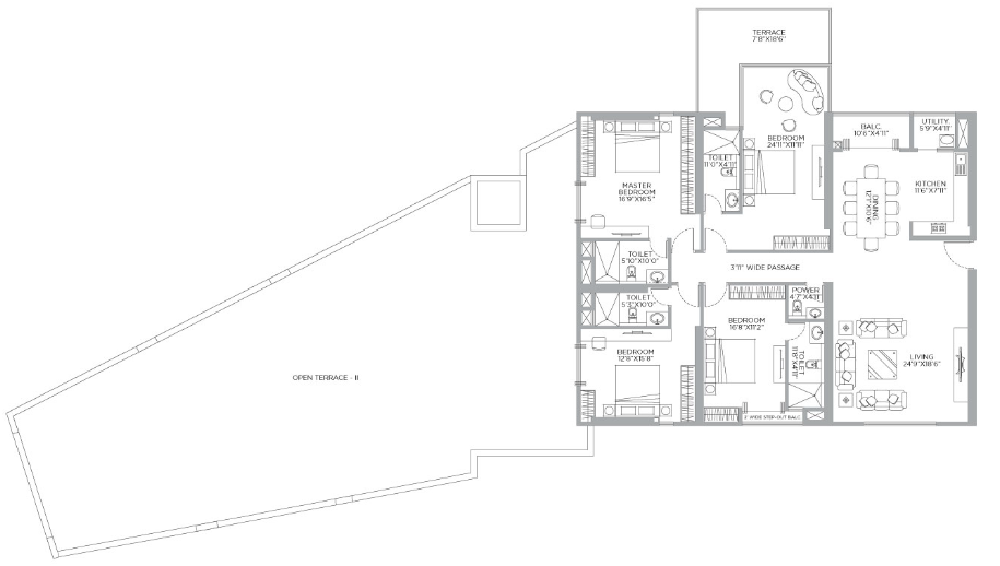
Configurations
4, 5 BHK
No of Towers
1
No of units
136
Main USP's
- 418 Ft. High Sky Lounge.
- Highrise Building.
- Prime Location.
Unit Sizes & Price
| Unit Type | Unit Area | Unit Price |
|---|---|---|
| 4 BHK | 2084sqft | |
| 4 BHK | 2169sqft | |
| 4 BHK | 2409sqft |
Car Parking Information
Explore the Upcoming Skyline of EM Bypass Kolkata - one of the city's most rapidly evolving corridors. Known for its prime location and modern residential complexes with a range of new high-rise buildings, luxury towers, and mixed-use developments, this area promises unparalleled gr... Explore this locality






Badminton Court
Banquet
Games Room
Kids Play Area
Terrace Garden














